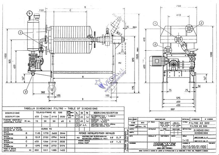
Filter press DIEMME mod. F500 KE

Sold
Filter press DIEMME mod. F500 KE
Location:Isola Vicentina, Italy
Description
Art. 4283 N ° 01 Filter press DIEMME mod. F500 KE
- Second-hand machine
- N ° of trays: 23
- Trays dimensions: 500 x 500 x 40 mm (thickness)
- Trays with central hole and side water exit
- Material of trays: Polypropylene
- Approx. Production per cycle: Kgs. 200 approx
- Manual closure with hydraulic piston
- Tiltable piston group to leave more space while opening the trays
- Manual trays shifting for opening
- Complete with set of second hand clothes and under clothes (used to
filter red clay)
- Not present the pump for mud or waste waters indicated in the
technical drawing. In any case not suitable to process ceramic
briefs
- Overall dimension 850 x 2200 x h 1250 mm
Specifications
| Condition | Used |
| Stock Number | 4283 |









